Up 三井美唄炭鉱の社宅 (南美唄) 作成: 2024-01-31
更新: 2024-02-27


     川島 (1933), p.905
    ‥‥‥ 諸建物は安く丈夫に防火的にして而も使用に便利ならしむるを主眼とし、材料は實際に耐久力ある丸太材、押角等の使用を多くし,屋根は從來の柾葺板葺を全廃し、坑外運搬軌道上家に至る迄総て亜鉛引鐵板葺とせり。
     坑夫住宅は,石狩平野の全貌を眼下に眺め高燥景勝の地を選び、敷地を廣くし (1戸當60坪),別圖に示せるが如く4戸建、若しくは2戸建,1戸3室とし,所謂坑夫長屋式観を脱却し、居心地よきものとする事に努めたり。

     川島 (1933), pp.906,907
    敷地、道路
    東西南北を縦貫する10間幅の道路を交叉せしめ、之れを基準として長86間、幅25間の地域を一區劃とし、縦構に幅3問の道路を通す。
    中央道路の左右各3間は芝生とし、中央6間を本道路とせり。
    區劃の周囲にはアカシヤの街路樹を配したり。
    社宅の構造
    1區劃中には4戸建 (2.5K×16K) 8棟,2戸建 (2.6K×8K) 2棟、計36.戸を配置せり。
    各棟の間隔は横5間,裏13間 (野菓畑に利用せり)。
    玄關より道路下水間 3間 (此間は庭園とし各戸共花卉を栽培ぜり)。
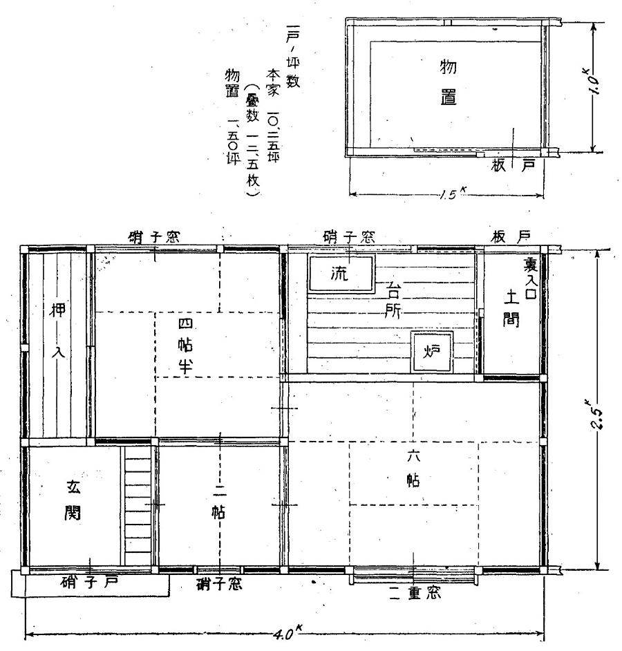
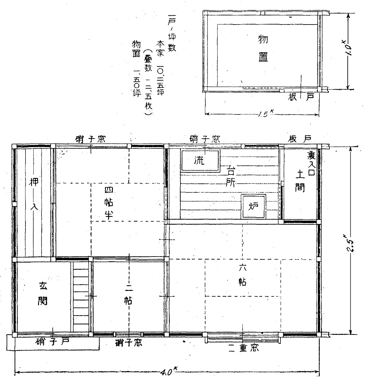
    本家
    木造土壁付
    屋根亜鉛引鐵板葺
    出入口 玄關及臺所口
    1戸建坪 10.5坪
    3室 6畳、4.5畳 (縁付畳)、2畳
    毫所 1坪半、
    窓は,出窓とし外硝子障子、内紙障子とせり。
    物置
    1戸に付1坪半
    便所
    別棟なるも1戸毎に專用
    逍遙地
    用地の境界には25間、幅延長700間の逍遙地を設け、アヵシヤ、唐檜、ポプラ、櫻樹の殖林を爲し、道路両側には2間の芝生及花壇を設け、慰安の一助たらしむ。

同上, p.906


    川島 (1933) の謂う「1戸當60坪」の計算:
      1区画の面積:長86間, 幅25間 = 2150 坪
      1区画の戸数:4 × 8 + 2 × 2 =36 戸
      2150 ÷ 36 = 59.7 坪/戸


      黒田 (1936), pp.526,527
     社宅は従業員が帰宅後に充分家庭的の団欒気分を満喫して、而も居ながらに市街地気分をも味はへる様にとの考へから社宅街を建設したもので、先づ道路を井型に設定して其の両側にはアカシヤの街路樹を植え、又社宅の外廓を逍遙道路で包み,社宅中央の大通はその左右に2間幅の芝生を作って其の中に桜を植え美観を添へて居る。
    社宅の一棟は4戸建又は2戸建として各道路に面して左右に並列させ、東南向になって居るからその表裏から午前午後交互に日光を受くる様になって居る。
     間取は第6図の様に表側に玄関があり、裏側に勝手出入口があるので,室内の整頓が往き届いて住心地がよく、玄関の前庭には各自の花壇があり、裏側は十数間の隔りがあるため日常の蔬菜を栽培して居る。
     處が此頃家族の多い家では夜勤時の睡眠が困難であると云ふものがある為、第7図の如く家の高さを増し屋根裏を利用して2階に4畳半と1間半の押入を採る事としし,今年100 戸を新築した。
     ‥‥‥ 社宅は居心地がよく飲料水は良質の上、水道であるためと其他の福利施設等と相俟って、従業員の移動率は 0.02 である。






『美唄市百年史』, p.757 から引用:
移転した炭鉱住宅街 (1935年)



黒田 (1936), p.521


川島 (1933), p.905


『足跡 : 三井美唄35年史』から引用:
大通り (1941)


大通り3丁目付近 (1951)



1962年の空中写真
国土地理院「地図・空中写真閲覧サービス」から引用,編集
黄色:鉱員住宅域,水色:職員住宅域,赤色:社外者営業域


職員住宅 (上) と鉱員住宅 (下) (同縮尺)


    つぎは,上の鉱員住宅地の画像を拡大したものであり,黒田 (1936) が述べている通りに住宅街がつくられていることがわかる:


『三井美唄小学校卒業アルバム 1962』から引用:


1970年代北海道鉄道写真「美唄鉄道」から引用:



  • 引用文献
    • 川島三郎「美唄の探炭計晝に就て」, 日本礦業會誌, Vol.49 (No.584), 1933., pp.887-909.
    • 黒田近雄「三井美唄炭礦の現況に就て」, 日本礦業會誌 No.615, 1936